Premier Casita / Sierra

ManufacturedLot ModelNew

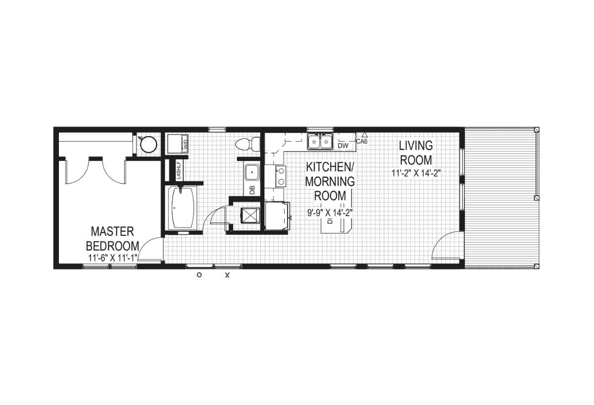
Floor Plan

Inventory Description

The Casita / Sierra, unfolding over 667 square feet, is an exemplar of compact and elegant design. It features a single, inviting bedroom and a sleek, well-appointed bathroom. Ideal for individuals or couples, this home merges efficient use of space with a modern aesthetic. The Casita / Sierra is tailored for those who seek simplicity without compromising on quality and style, offering a living experience that is both charming and practical.
Share This Home
Bedrooms 1
Bathrooms 1.00
Square Feet 667
Length 44' 0"
Width 15' 2"
Sections 1
Stories 1
Style Ranch
Price Call for pricing
Model Year
Serial #

3D Tour

No 3d Tour Available

Inventory Specifications

Bathroom Backsplash: 4” Tile Backsplash
Bathroom Bathtubs: 1-Piece Fiberglass (White) Tub/Shower (Master and Main Baths)
Bathroom Fans: Fan/Light Combination (Separate Switch) in Ceiling
Bathroom Flooring: 16" x 16" Glue-Down Resilient Vinyl Tile Flooring
Bathroom Lighting: 2-Bulb Vanity Light
Bathroom Sink: White China Lavs - Dual Lever Nickel Faucets
Insulation (Ceiling): R-50 Blown Insulation
Exterior Wall On Center: 2x6 Exterior Wall Framing (Double Top Plate) 16" o.c.
Floor Decking: T&G OSB Floor Decking
Insulation (Floors): Perimeter Insulation in Floor Cavity (Modular Only) / R-11 Insulation in Floor Cavity (HUD Only)
Interior Wall Studs: 2x4 Interior Walls
Roof Load: 40# Roof Load
Side Wall Height: 8’ Sidewalls (w/Flat Ceilings)
Insulation (Walls): R-21
Front Door: 36” x 80” 3-Panel - White w/Nickel Knob & Deadbolt
Rear Door: 36” x 80” 3-Panel - White w/Nickel Knob & Deadbolt
Roof Pitch: 3/12 Roof Pitch
Shingles: Architectural Shingles
Siding: 4” Dutch Lap Vinyl Siding
Window Type: Vinyl - Single Hung White Low-E Windows
Exterior Outlets: (2) Weather Resistant Exterior GFIs (Front/Rear)
Carpet Type Or Grade: Level 1 Shaw Carpet w/6# Rebond Carpet Pad
Interior Doors: 3 Panel White Painted Interior Doors / Nickel Interior Door Knobs
Safety Alarms: Smoke Alarms/CO2 Detection w/Battery Back-up
Window Treatment: Window Blinds (White) - Throughout
Kitchen Backsplash: 4” Tile Backsplash
Kitchen Cabinetry: Kensington Maple Cabinet Doors (Coffee or Latte) / Cabinet Door & Drawer Hardware
Kitchen Countertops: Laminate Counter Tops / Edge / Metal Edging on Tile Throughout
Kitchen Dishwasher: 24" Opening (prep only)
Kitchen Faucets: Dual Lever Faucet w/Spray - Nickel
Kitchen Flooring: Glue-Down Resilient Vinyl Tile Flooring
Kitchen Lighting: (1) LED Can Light over Sink, (1) Light Centered in Kitchen
Kitchen Range Hood: 30” Lighted Range Hood w/Recirculating Vent (Stainless Steel)
Kitchen Range Type: Standard Opening 30"
Kitchen Refrigerator: Standard Opening 38" x 71" w/ Ice Maker Prep
Kitchen Sink: Deep Double Bowl Stainless Steel Top-Mount Sink
Additional Appliances: 1 - Exterior Hydrant (Rear)
Electrical Service: 200 Amp Electric Service w/40 spaces
Furnace: High Efficiency Gas Furnace & Duct Work Installed
Heat Duct Registers: Perimeter Heat System w/Floor Registers / Indirect Return Air
Thermostat: Programmable Digital Thermostat
Utility Cabinets: Laundry Overhead Shelf
Water Heater: 40 Gallon Electric Water Heater

Location

Address

101600 U.S. Highway 89
Thayne WY, 83127

Schedule a Viewing

If you’d like to see this home in person, just follow the link below to contact us and schedule a tour.

Contact Us
Offered By
Mountain West Modulars
101600 U.S. Highway 89
Thayne, WY 83127
BonnaVilla - Aurora, NE
Proudly Built By
Please note:

All sizes and dimensions are nominal or based on approximate builder measurements. Mountain West Modulars reserves the right to make changes due to any changes in material, color, specifications, and features anytime without notice or obligation.